来源:懿品乡墅设计 发布时间:2019-12-06 17:36 访问数量: 347次
生活于城市之中,
难免感慨,谧境难寻,草木稀疏。
田园难得,深巷难求,
怕也只有一方庭院,
能增色红尘岁月,回归平淡生活。

生活不仅仅是房贷车贷,更要有诗和远方。城市里钢筋混凝土的格子间,锁不住一颗向往自由浪漫的心。乡村也并不再落后遥远,一踩油门,就是一个诗酒田园。既然城里房价高涨无度,不如相约回家自建别墅。
用在城市买一个厨房的钱给自己建一个别墅,省下的钱,再买辆不错的汽车,现在交通方便,开车进城享受繁华,退归田园享受静谧。且无喧嚣之苦,无房贷之累,朝拂晨露撷花,暮伴流云煮茶。

海容模块别墅,让民宅不再土里土气,而是以独特又和谐的方式,以宜居又环保的格局,自信地站在你面前。 让你一见倾心。
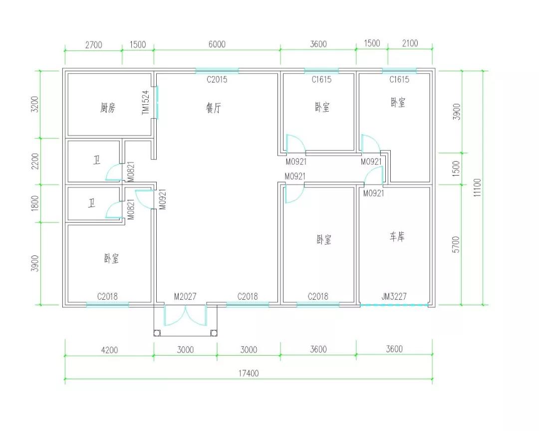
房屋概况
占地尺寸:17.4m x 11.1m
占地面积:193.14㎡
建筑面积:193.14㎡
毛坯房成型预计费用:17万(包括海容模块、钢筋、混凝土、抹面以及人工)
其中海容模块墙体预计费用:7.5万

布局:餐厅、厨房、客厅、卧室、卫生间、车库
选择海容模块建房的理由:
(1)自身强度大,导热系数小,仅为0.028w/m·k,节能效果明显;
(2)本身B1级防火,结构性防火好;
(3)建房子封堵了冷热桥,建筑物使用寿命长久;
(4)抗震等级高,适用于抗震设防烈度8度及8度以下地区;
(5)施工简便、操作灵活,建造过程中完全取代墙体各种砌块、浇筑模板、外墙保温材料;
(6)建造周期短、综合性价比高,满足建筑节能与结构一体化技术要求;
(7)施工过程无建筑垃圾产生,实现现场文明施工;
(8)种类齐全、几何尺寸准确,材料损耗小。
农村别墅装修设计全包装修包括硬装与软装,涉及的花费事项很多,因此,为了更好地把控别墅全包装修的花费,我们来分析一下别墅全包装修需要注意哪些问题。
2019-09-04 10:18
前期设计,主体拆除改造,改造水路和电路的等,这些你都了解多少?
2019-09-04 10:23
梅雨季节是可以别墅设计的。因为以往梅雨季节的别墅设计难题已经被长期的施工工艺升级给解决了,同时梅雨季节别墅设计还有这几点好处
2019-09-04 10:27
别墅设计的顺序是我们进行别墅建设之前必须要了解的步骤,建房是一辈子的大事,我们一定要慎重!
2019-09-04 10:31